Natur - Bergwelt - Thüringen - Ilmenau

Bauernhaus Donnei in Wolkenstein, Südtirol


Gebäudeart: Feuerhaus
Hofanlage: Getrennter Bau
Wirtschaftsform: Ackerbau und Viehzucht
Vier Wohnungen, Werkstatt, Freistehender Backofen hinterm Haus
Aufgemessen Anfang 1940 bis 1942

Donnei Bauernhaus Ansichtszeichnung
Bauernhaus Donnei in Wolkenstein, Ansichtszeichnung

Donnei Bauernhaus
Ansicht der Osttraufseite

Donnei Bauernhaus
Ansicht der Talgiebelseite

Donnei Bauernhaus Grundriss Untergeschoss
Grundriss Untergeschoss

Donnei Bauernhaus
Grundriss Hauptgeschoss

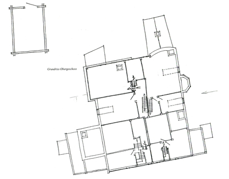
Donnei Bauernhaus Obergeschoss
Grundriss Obergeschoss

Donnei Bauernhaus Grundriss Dachgeschoss
Donnei Bauernhaus Grundriss Dachgeschoss

Donnei Bauernhaus Grundriss Untergeschoss Stadl
Donnei Bauernhaus Grundriss Untergeschoss Stadl

Donnei Bauernhaus Grundriss Hauptgeschoss Stadl
Donnei Bauernhaus Grundriss Hauptgeschoss Stadl

Zwei Schnitte Feuerhaus
Zwei Schnitte Feuerhaus

Ansicht Solder
Ansicht Solder

Getäfelte Erkerstube
Getäfelte Erkerstube


Stuck aus Holz, Mittelstück in der Erkerstube,
blauer Grund, weißes Auge, gelbe Strahlen, rote Buchstaben ODwH
Occhio Dio weiscia Homo


Aus: Bauernhöfe in Südtirol, Bd. 7, Gröden

Bauernhaus

Bauernhaus von 1758 (Rauchhaus)
Radl, Liesenthal, südl. Gmünd

Bauernhaus-Schnitt

Aus: Zeitschrift des D. u. Oe. A.-V. 1893

Vogelweidhof

Vogelweidhof (Ansicht und Grundriß)

Vogelweidhof

Henhart